Passer au contenu principal
Arti's RenoGest
Particuliers, pro et copropriétés
Rénovation, et aménagement intérieur.
Dépannage et réhab. après sinistre.
Service gardiennage et nettoyage.
Commande en ligne.
Arti's RenoGest
Accueil
qui sommes nous ?
Particulier
Gestionnaires de parc immo habitat ou tertiaire
Spécial gestion locative
ESPACE PRO CHANTIER
Notre catalogue complet
Services-Poses-Sécurité-Nettoyage-Etudes-Accompagnement
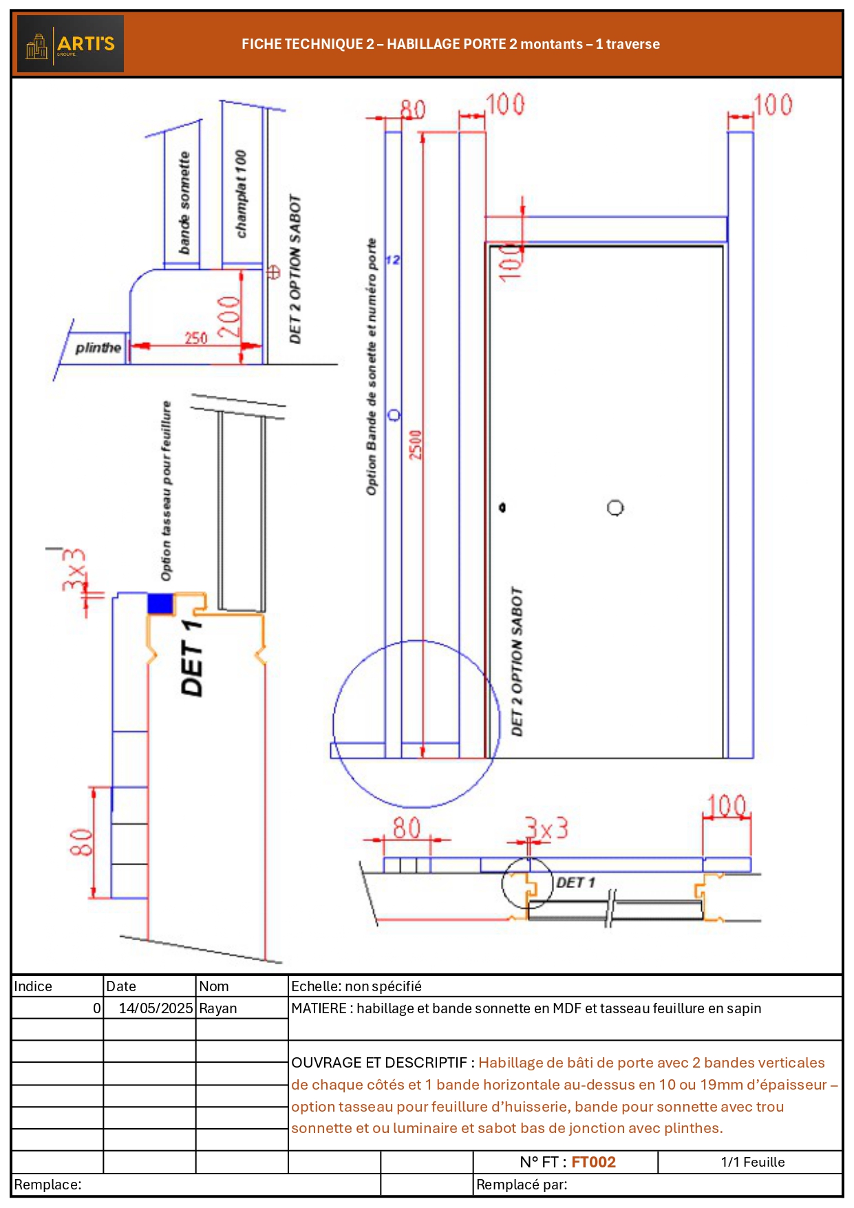
Habillage de bâti de porte
plinthes - lisses - bandes - stylobates
habillages des menuiseries et châssis extérieures (allège et ébrasements)
Ensembles aménagements intérieures des placards
Caches Plomberie et pièces humides
Portes placards et GTL bois
Gaines techniques
Moulures
Seuils à la suisse
Huisseries bois
Nuancier Artis
Revalorisation
nos clients
Contact
Compte
Rechercher
0
Liste des produits favoris
0
Panier
Contactez-nous
Catlogue Artis Pdf 3 Page 0005 Jpg
Image – 621,5 KB
206 téléchargements
Télécharger
Catlogue Artis Pdf 3 Page 0006 Jpg
Image – 585,8 KB
180 téléchargements
Télécharger
Catlogue Artis Pdf 3 Page 0007 Jpg
Image – 601,8 KB
169 téléchargements
Télécharger
https://hoodspot.fr/sieges-sociaux/renogest-93807439000015/